中古住宅 長野県飯田市下久堅柿野沢819番地1
- 価格780万円
- 土地面積1501.22m2
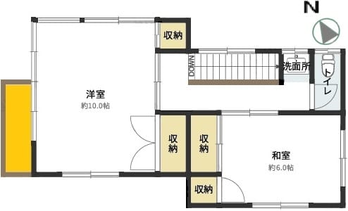
- 間取9DK(1階:DK、和室×4、洋室×1、2階:和室×1、洋室×1、離れ)
- 建物面積176.38m2
- 通学区飯田市立下久堅小学校(1400m)
飯田市立緑ヶ丘中学校(3600m)
下久堅保育園:約1500m
最終更新日 2025年12月20日
未登記ですが、離れ(2DK)があります。立派な庭やキウイの木があります。
静かな環境でゆったりした生活を過ごしたい方にオススメ!!
日当たり、眺望が良い物件です。天気の良い日に縁側で読書やお茶などゆったり過ごせます。離れや車庫もあり、作業場としても事務所としても使用出来ます。
フィールドデザイン(株)
担当:不動産部
0265-96-7992
ココスマを見てとお伝えください
地図・周辺環境
※物件位置が表示されていない場合があります。
また特に外部リンク先のGoogleマップでは、実際とは異なる位置が表示される場合があります。
物件の正確な位置は必ず取扱い会社へお問合せください。
フィールドデザイン(株)
担当:不動産部
0265-96-7992
ココスマを見てとお伝えください
物件詳細
| 価格 | 780万円 |
|---|---|
| 土地面積 | 1501.22m²(公簿) / 454.11坪 |
| 建物面積 | 176.38m² / 53.35坪 |
| 間取 | 9DK(1階:DK、和室×4、洋室×1、2階:和室×1、洋室×1、離れ) |
| 所在地 | 飯田市下久堅柿野沢819番地1 |
| 通学区 | 飯田市立下久堅小学校(1400m) 飯田市立緑ヶ丘中学校(3600m) 下久堅保育園:約1500m |
| 交通 | 電車:飯田線駄科駅 距離2900m 徒歩55分 自動車4分 バス:C2久堅線線 バス停牧の内 距離840m 徒歩16分 高速道路:三遠南信道 飯田上久堅・喬木富田I.C. 車4分 |
| 備考 | ハザードマップ:土砂災害特別警戒区域(R急傾斜地の崩壊)※庭の一部、 ハザードマップ:土砂災害警戒区域(Y急傾斜地の崩壊) ハザードマップ:土石流危険渓流 文化財保護法:該当無 テレビの視聴:ブースターが必要です。 水回り:修繕必須 本物件内に農地有。農地法第5条許可取得が必要です。 現状有姿売買 宅地は境界確定済み。農地については現状有姿売買です。 間取り図と現況が異なる場合は現況を優先します。 |
| 建物構造 | 木造 |
| 建物概要 | 地上2階 |
| 駐車場 | 有 (車庫2台分、その他青空駐車場) 台数:5台あり |
| 下水 | 個別浄化 |
| 完成年月日 | 1992年1月 |
| 土地権利 | 所有権 |
| 接道状況 | 方角:東 道路幅員:4.2m 公私区分:公道 接面:9m |
| 設備 | BS端子・システムキッチン・インターホン・BT別室・暖房便座・温水洗浄便座・バス1坪以上・トイレ2箇所・追焚機能・庭・バルコニー・外物置・日当り良好・二世帯向き・閑静住宅街・田舎リゾート向き・給湯・洗髪洗面化粧台・出窓・照明器具付き・プロパンガス・上水道・浄化槽・電気・駐車場3台分 |
| 取引態様 | 一般媒介 |
| 手数料 | 手数料必要 |
| 引渡し/入居日 | 相談 |
| 管理番号 | 飯仲4 |
| 物件番号 | 446891 |
| 最終更新日 | 2025-12-20 |






















































