建物 検索結果(1-50/155件)
飯田市上郷黒田866-3 UP
飯田市下久堅下虎岩 UP
飯田市駄科660-12 UP
飯田市今宮町1丁目13 UP
飯田市上久堅 UP
下伊那郡高森町下市田 UP
飯田市上郷黒田5544 UP
敷地内に畑スペースがあるので家庭菜園がお好きな方におすすめ!徒歩圏内に病院・スーパー等があるので車がない方も困りません!【There is a garden space on the premises, so it is recommended for those who like home gardening! There are hospitals and supermarkets within walking distance, so even those without a car won't have any trouble! 】
- 価格
- 690万円
- 土地面積
- 384.64m2
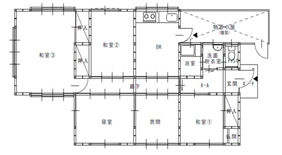
- 間取
- 4DK
- 建物面積
- 93.23m2






































































































