中古住宅 長野県飯田市大瀬木 飯田市大瀬木 スムストック住宅
- 価格1500万円
- 土地面積250m2
- 間取6LDK
- 建物面積152.78m2
- 通学区飯田市立伊賀良小学校(240m)
飯田市立旭ケ丘中学校(1480m)
最終更新日 2025年11月14日
セキスイファミエス信越(株)不動産部
0120-344-816
ココスマを見てとお伝えください
セキスイファミエス信越(株)不動産部
0120-344-816
ココスマを見てとお伝えください
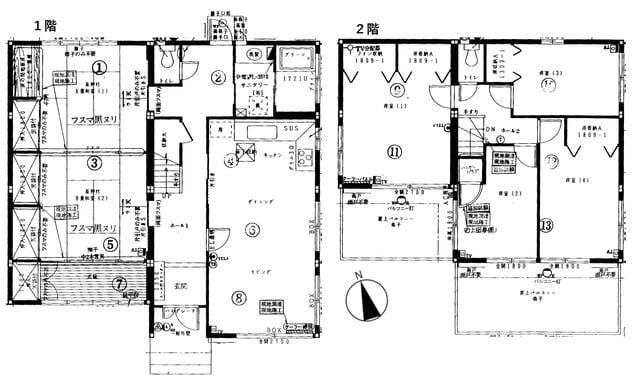
物件詳細
| 価格 | 1500万円 |
|---|---|
| 土地面積 | 250m²(公簿) / 75.62坪 |
| 建物面積 | 152.78m² / 46.21坪 |
| 間取 | 6LDK |
| 所在地 | 飯田市大瀬木 |
| 建物名 | 飯田市大瀬木 スムストック住宅 |
| 通学区 | 飯田市立伊賀良小学校(240m) 飯田市立旭ケ丘中学校(1480m) |
| 交通 | 電車:飯田線飯田駅 距離4200m バス:バス停駒場線 大拆木バス停 距離130m 徒歩2分 |
| 建物構造 | 軽量鉄骨造 |
| 建物概要 | 地上2階 |
| 下水 | 公共下水道 |
| 完成年月日 | 1994年5月 |
| 施工会社 | セキスイハイム信越株式会社 |
| 土地権利 | 所有権 |
| 接道状況 | 道路幅員:6.2m 公私区分:公道 接面:2.5m |
| 設備 | システムキッチン・TVモニタ付きインターホン・温水洗浄便座・オートバス・トイレ2箇所・追焚機能・ルーフバルコニー・床下収納・洗髪洗面化粧台・照明器具付き・プロパンガス・上水道・下水道・駐車場3台分 |
| 取引態様 | 専任媒介 |
| 引渡し/入居日 | 相談 |
| 物件番号 | 447251 |
| 最終更新日 | 2025-11-14 |



















